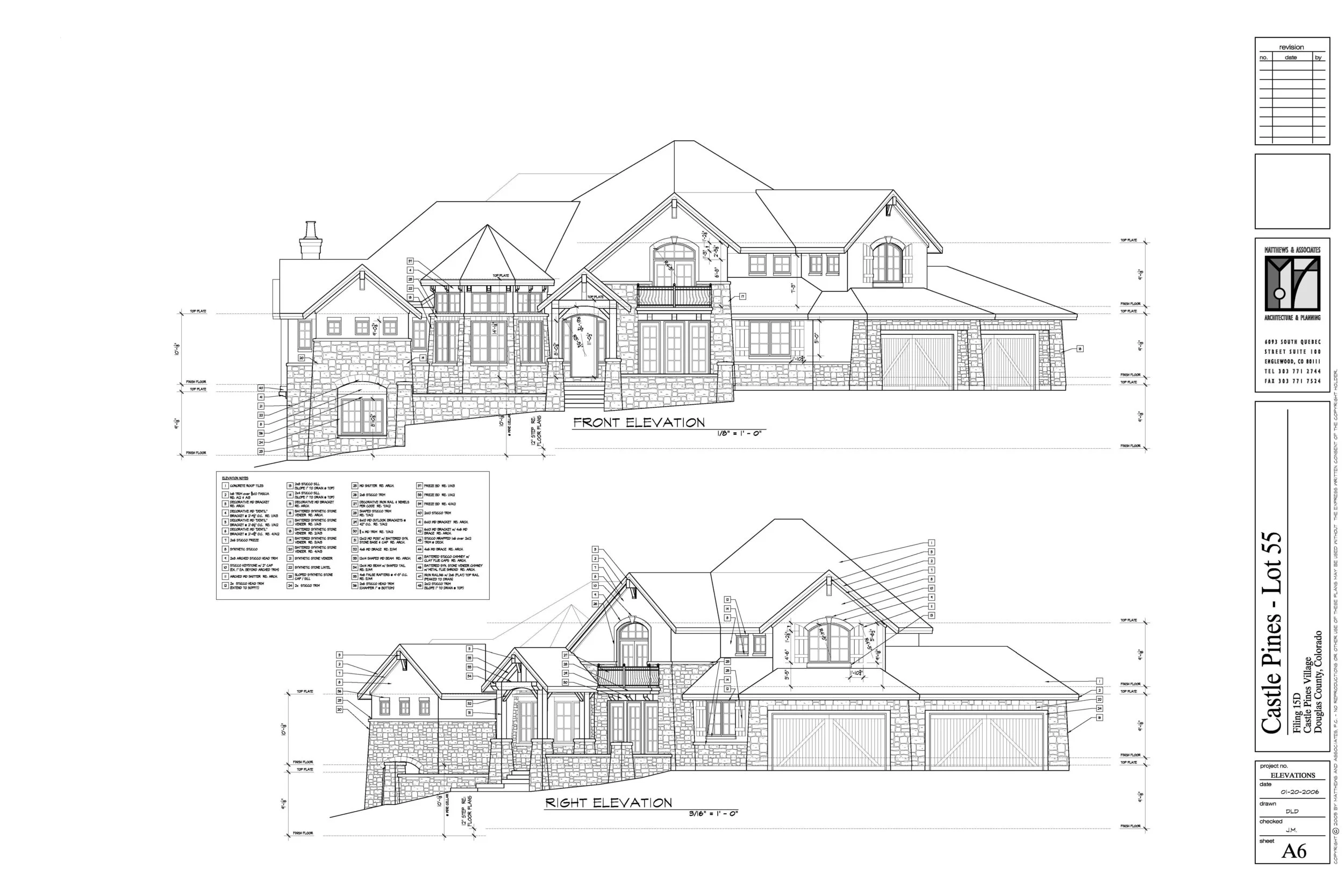
THIS CUSTOM HOME, BUILT OVERLOOKING THE CASTLE PINES GOLF COURSE, IS DESIGNED IN A COLORADO HIGH COUNTRY VERNACULAR WITH ECLECTIC ELEMENTS. THE STRIKING ELEVATION IS CONSTRUCTED OF STUCCO AND STONE, ENHANCED BY TIMBER DETAILS.
Castle Pines, Colorado
THIS CUSTOM HOME, BUILT OVERLOOKING THE CASTLE PINES GOLF COURSE, IS DESIGNED IN A COLORADO HIGH COUNTRY VERNACULAR WITH ECLECTIC ELEMENTS. THE STRIKING ELEVATION IS CONSTRUCTED OF STUCCO AND STONE, ENHANCED BY TIMBER DETAILS.
Front Elevation | Rendering
Front Elevation
Rear Elevation
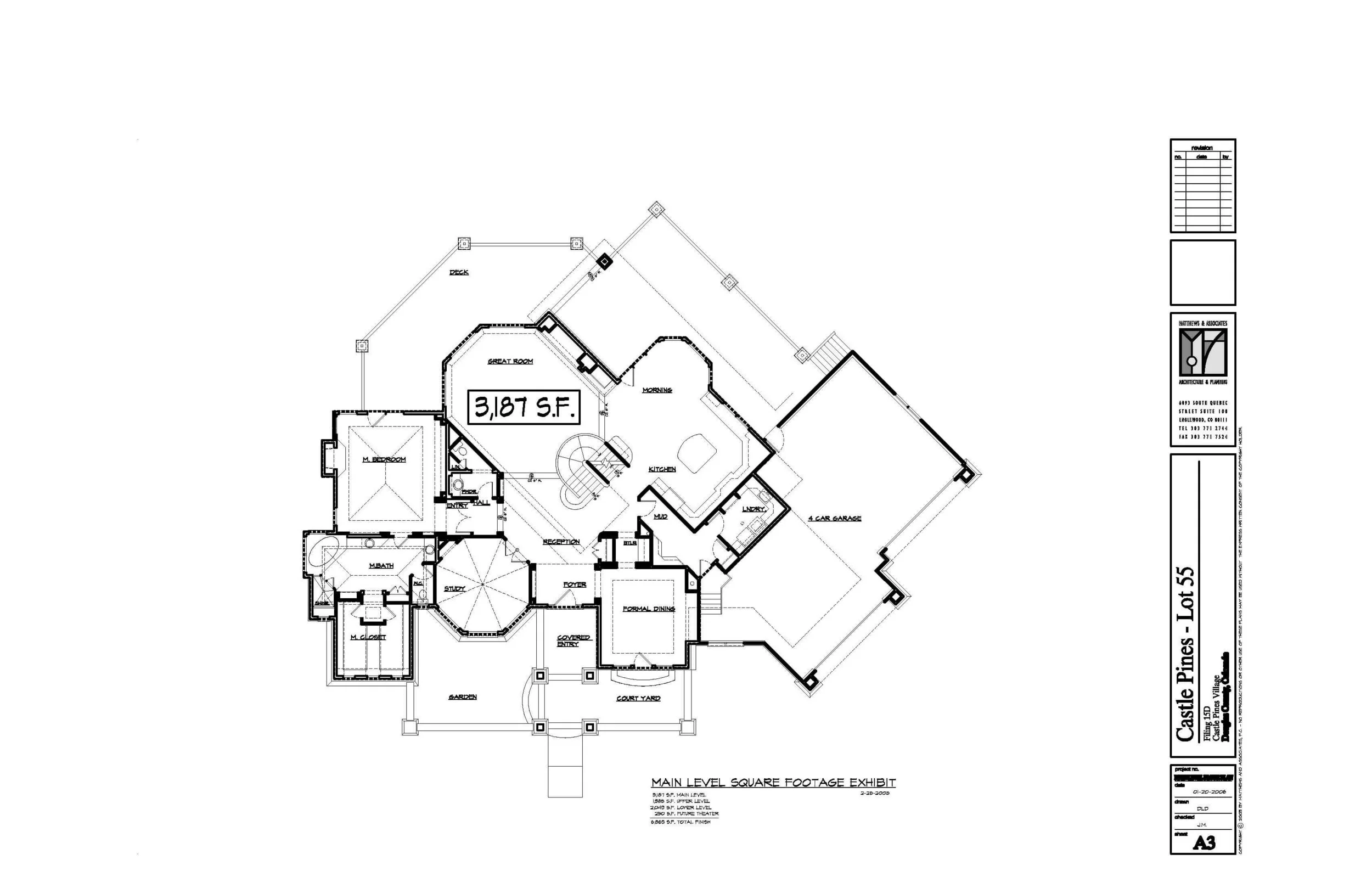
Main Level Floor Plan
Upper Level Floor Plan
Site Plan