photo_enlargedthumb-DRHORTON_2.jpg

D.R. Horton

Denver, Colorado

 

M-A ARCHITECTS HAS BEEN INVOLVED IN THE DEVELOPMENT OF NEW HOUSING DESIGNS FOR THE DENVER DIVISION OF DR HORTON, A NATIONAL HOMEBUILDER FOR MORE THAN 15 YEARS.

 
Marathon Oil

Marathon Oil

Streetscape Rendering

Lowry

Lowry

Rendered Elevations

  Lowry  | Home Exterior

Lowry | Home Exterior

King Ranch

King Ranch

Rendered Elevations + Site Plans

  King Ranch  | Exterior

King Ranch | Exterior

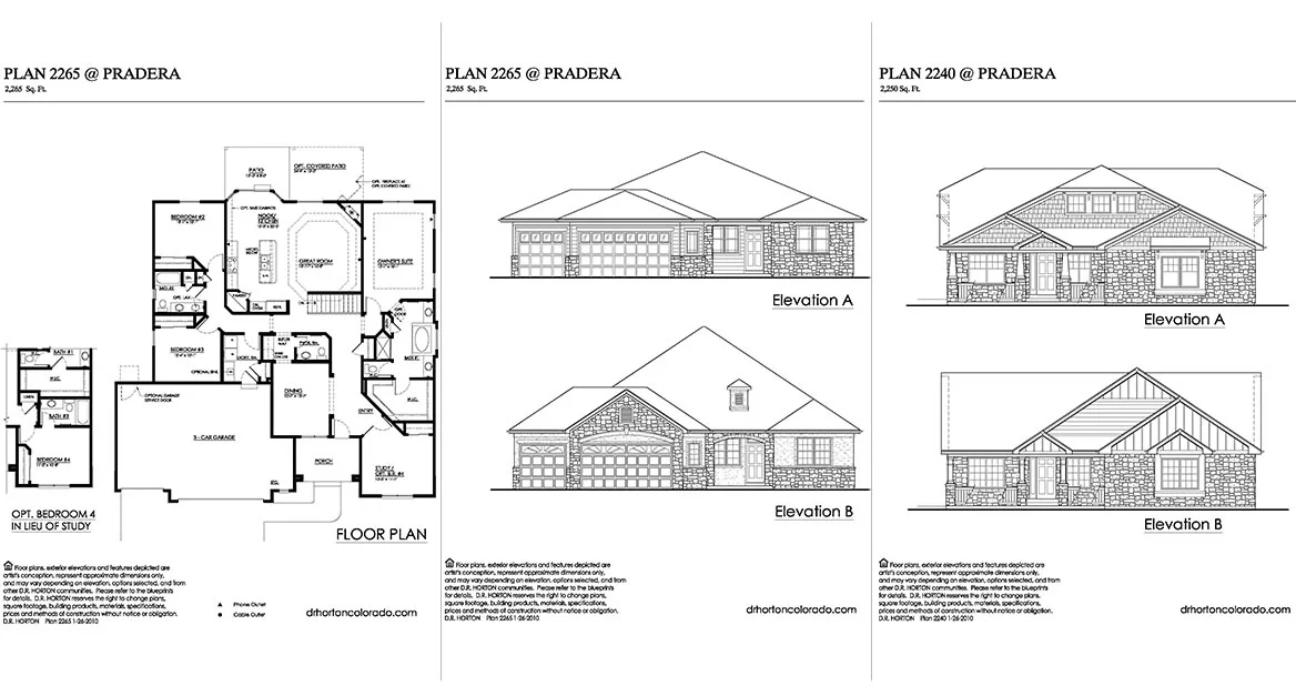
Pradera

Pradera

Elevations + Floor Plans